
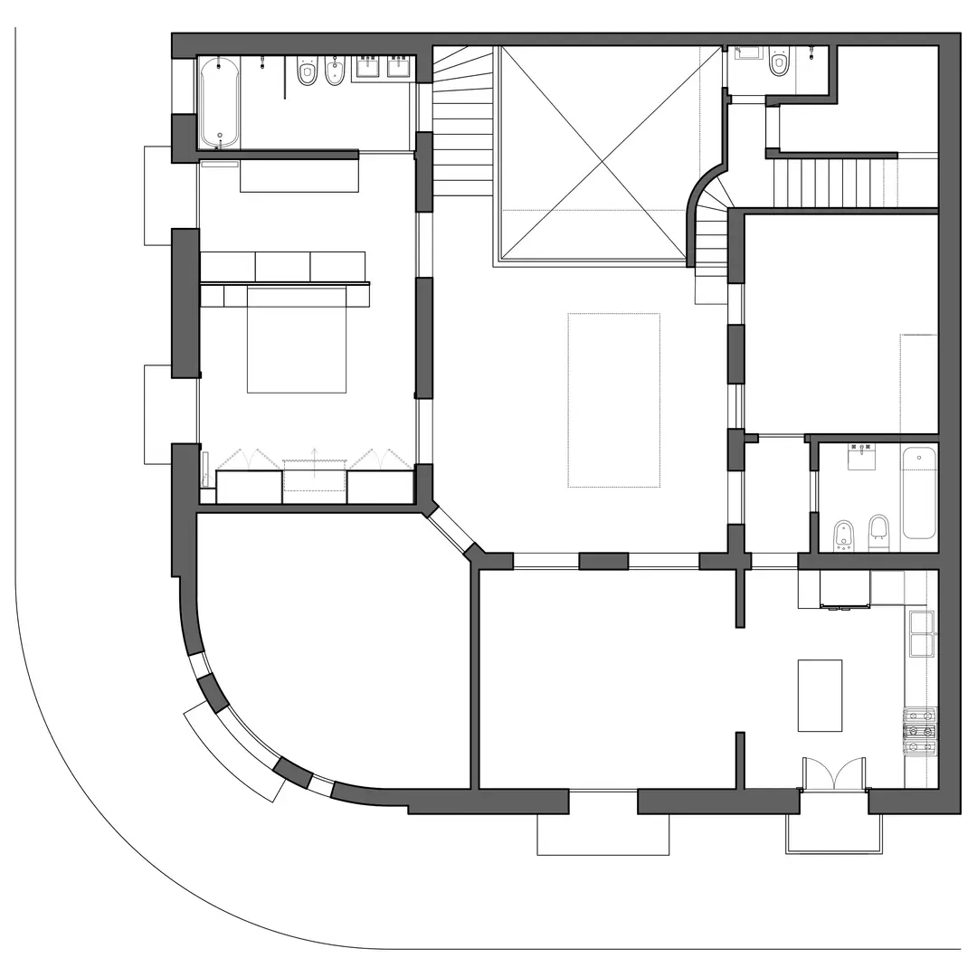
PH DORREGO Y EL SALVADOR
Palermo, Buenos Aires. 2013. Reforma integral.
160 m²- Proyecto y dirección: Agustín Vital.
- Construcción: Oscar Honeker, Juan Olmedo, Juan Carlos Da Luz.
Los pehaches con entrada independiente y espacio aéreo se asemejan mucho a una casa. Para este ph en esquina se buscó, por un lado, reacondicionar y modernizar la primera planta original, priorizando la función cocina-comedor y sumando un baño completo y vestidor para la habitación principal.
Y por el otro lado, aprovechar las posibilidades dadas para desplegar un quincho/ sala de juegos en relación directa a la terraza. La operación principal en este sentido, consistió en la ampliación con un nuevo volumen y el reemplazo de la antigua claraboya del living central por un piso de vidrio incorporado a la galería de este segundo nivel.
Galería








Créditos




