
PISO LIBERTADOR Y VIRREY DEL PINO
Belgrano, Buenos Aires. 2024. Reforma integral Piso 12.
196 m²- Proyecto y dirección: Agustín Vital, Sebastián Policastro.
- Equipo de proyecto: Camila Bevaqua, Camila Orgambide.
- Construcción: Daniel Aquino Cáceres, Marcos Aquino Cáceres, Juan Rodriguez Insfran.
- Electricidad: Jorge Vergara.
- Herrería y vidrios: Enrique Ramos, Beatriz Lema.
- Carpinterías de madera: Enrique Albornoz, Pedro Vanrell, Norberto Martínez.
- Cerramientos de pvc: Abertec.
- Mesadas de mármol: United Stone.
- Aire Acondicionado: Matías Saintesteben.
- Calefacción: Eduardo Solon.
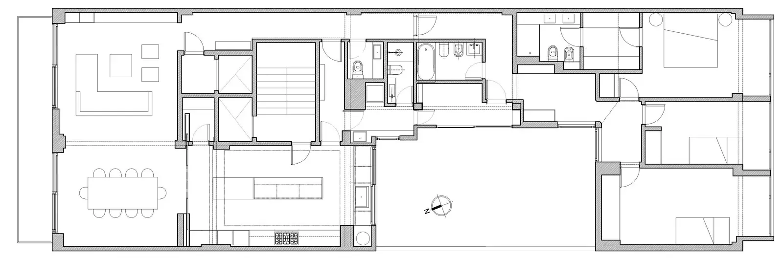
Se trata de una remodelación integral a fondo de todo un piso sobre la Avenida Libertador. Se lleva adelante la renovación total de todos los revestimientos, pisos, cielorrasos, instalaciones, iluminación, aberturas y mobiliarios. En la nueva distribución, la cocina gana espacio hacia el comedor y se integra completamente al living mediante una puerta corrediza de vidrio repartido. Para las habitaciones en contrafrente se logra mayor espacio incorporando los balcones y se ubica un nuevo baño completo, permitiendo hacer en suite la habitación principal. El sector lavadero y servicio se reconfigura permitiendo la doble circulación hacia la cocina.
Galería









Créditos















