
KRÜ ESPORTS
Palermo, Buenos Aires. 2021. Primer premio concurso privado. Gaming Center y Oficinas.
680 m²- Proyecto y dirección: Agustín Vital, Planta Alta Productora.
- Equipo de proyecto: Mijal Carbajal, Sebastián Policastro, Juan Bustos Berrondo.
- Construcción: Intro arquitectura.
Krü Esports es una empresa dedicada al gaming, los deportes electrónicos, videojuegos y nuevos medios digitales fundada por Sergio “Kun” Agüero, quien buscó incorporar su experiencia en el fútbol al ámbito de los deportes electrónicos.
Nos convocaron a un concurso con el objetivo de construir el Club en Buenos Aires. Nuestra propuesta plantea un espacio y mobiliario de carácter futurista con estética de nave espacial.
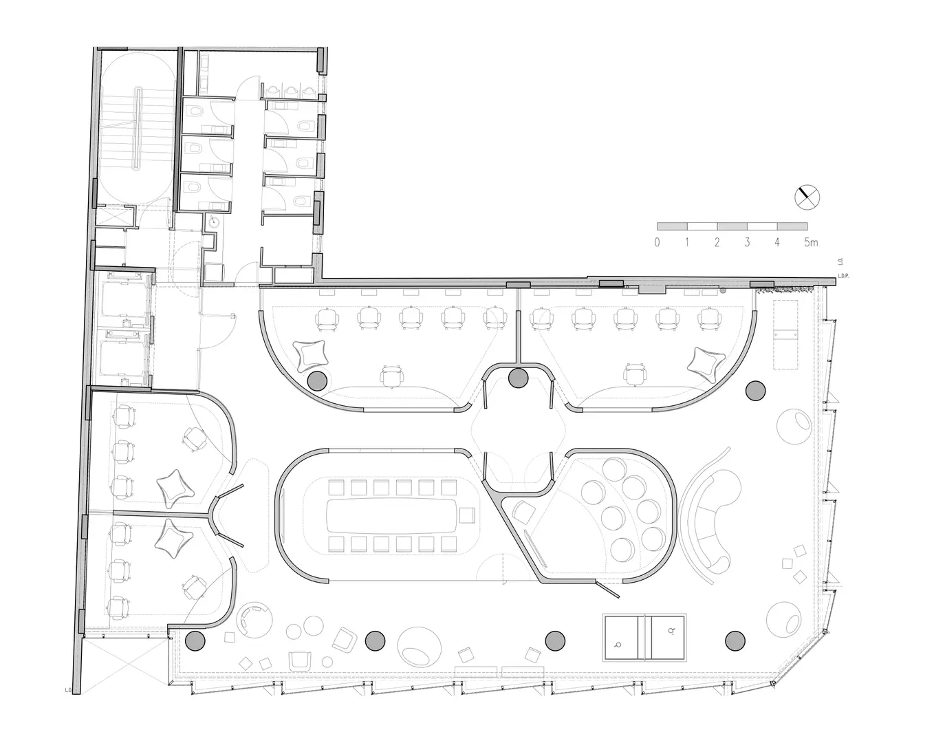
El motor del proyecto se encuentra en el primer piso y son las salas de entrenamiento para cinco equipos, además de una sala de reuniones principal y un área de esparcimiento.
La disposición de los volúmenes de las salas se presenta con una dualidad: sobrio, estricto, funcional en el perímetro externo y curvo, fluido, lúdico en el perímetro interno para las circulaciones. Por un lado, permite ubicar racionalmente los puestos de juego y por el otro, genera un recorrido expectante y de cierta introspección antes de salir a la cancha (entrar a la sala).
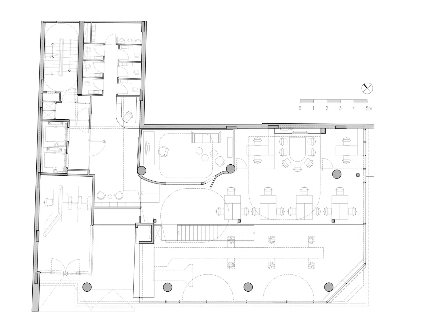
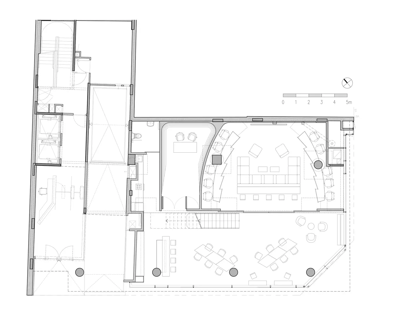
En la planta baja se instaló el microcine para eventos, con capacidad para 10 jugadores y espectadores. Se encuentra también un bar y un estudio de grabación. Luego, en el entrepiso se ubican la recepción, la sala de streaming y las oficinas del staff.
Galería





Créditos







