
CASA EXALTACIÓN DE LA CRUZ
Provincia de Buenos Aires. 2024. Vivienda unifamiliar.
160 m²- Proyecto y dirección: Agustín Vital, Sebastián Policastro, Iñaki Echeverría.
- Construcción: Caino construcciones.
- Estructura de madera: Rodolfo Mansilla.
- Pisos de madera: Miguel Benitez Rotela.
- Energía solar: Ariel Mesch.
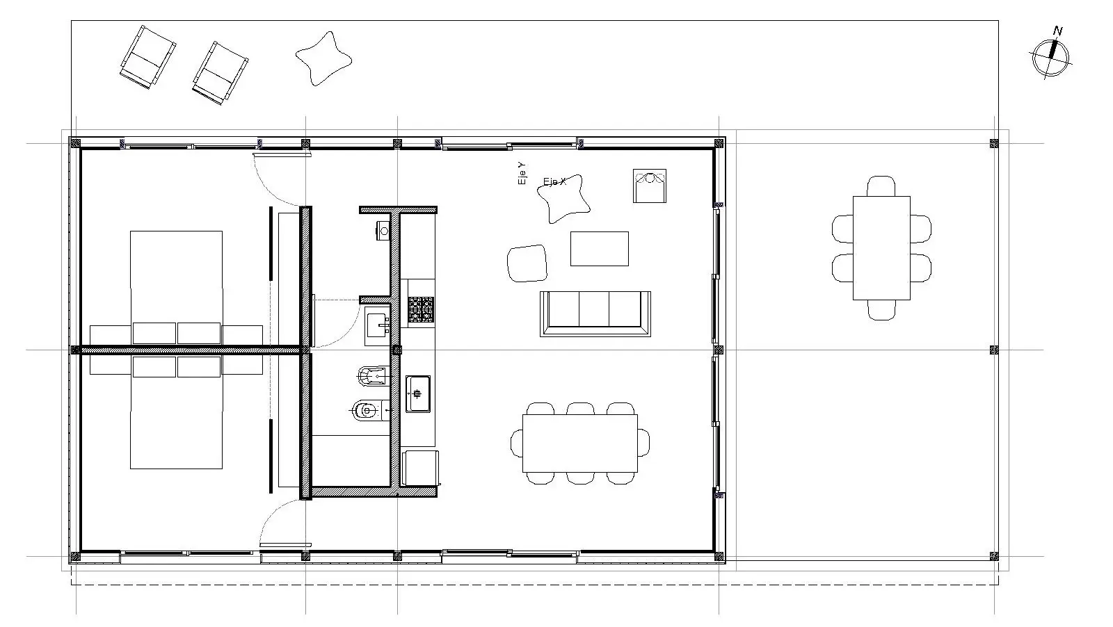
En un terreno rural de 15 hectáreas se construye esta casa de madera, como primer paso dentro de un proyecto de casas sustentables, biofábrica, vivero y huerta orgánica. El propósito del conjunto es entrar en contacto con los conceptos de permacultura y economía circular.
Se plantea una estructura de madera de una sola pendiente para la cubierta, independiente del cerramiento. Incluye dos habitaciones, un living, un núcleo sanitario central y una galería en L orientada al norte-este, que tiene la misma superficie semicubierta que el resto de la casa.
La envolvente se trata como un sistema pasivo, priorizando la eficiencia energética y confort ambiental. El techo y el piso son doble capa con cámara de aire en el medio y ventilación, los muros están aislados con celulosa proyectada y revestidos con listones de madera biosintética. Las aberturas de aluminio tienen ruptura de puente térmico y doble vidriado hermético. La energía eléctrica es proporcionada por paneles solares ubicados en la cubierta.
Galería







Créditos

