
CASA JUFRÉ Y THAMES
Villa Crespo, Buenos Aires. 2007-2008. Reforma integral.
340 m²- Proyecto y dirección: Agustín Vital.
- Equipo de proyecto: Paula Mariasch.
- Construcción: Gealco.
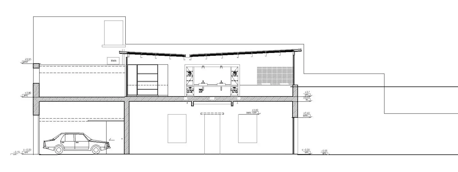
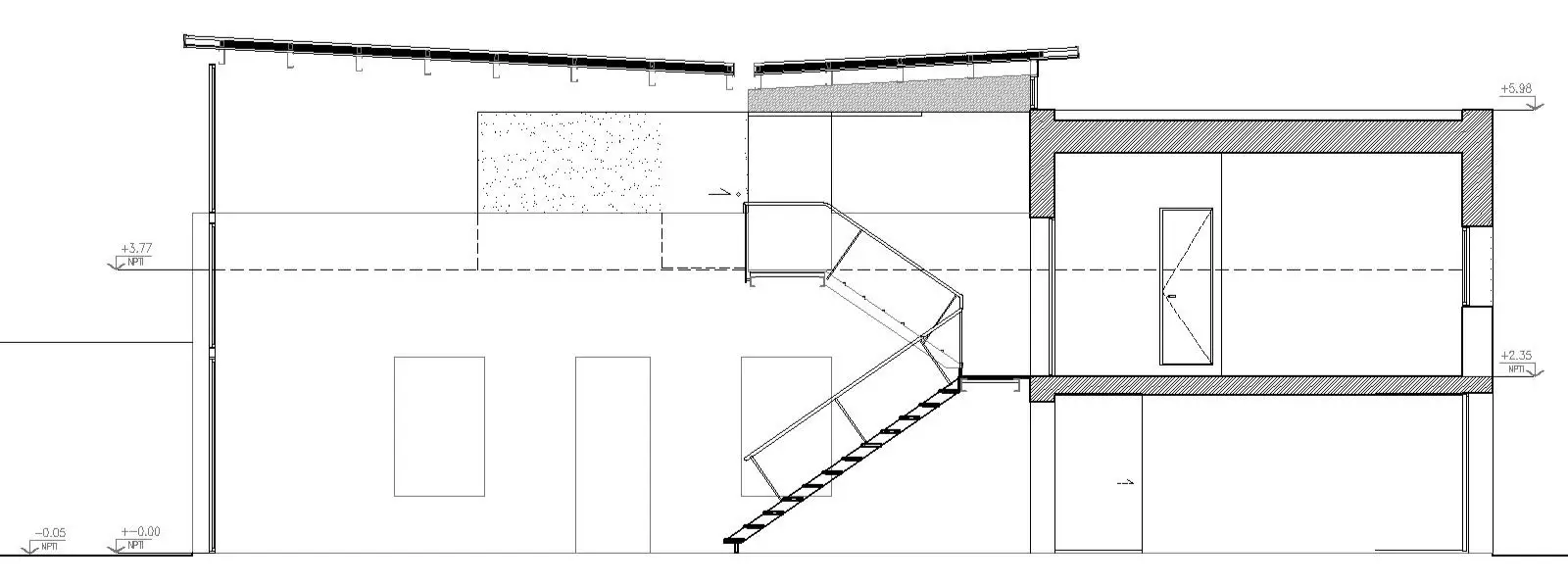
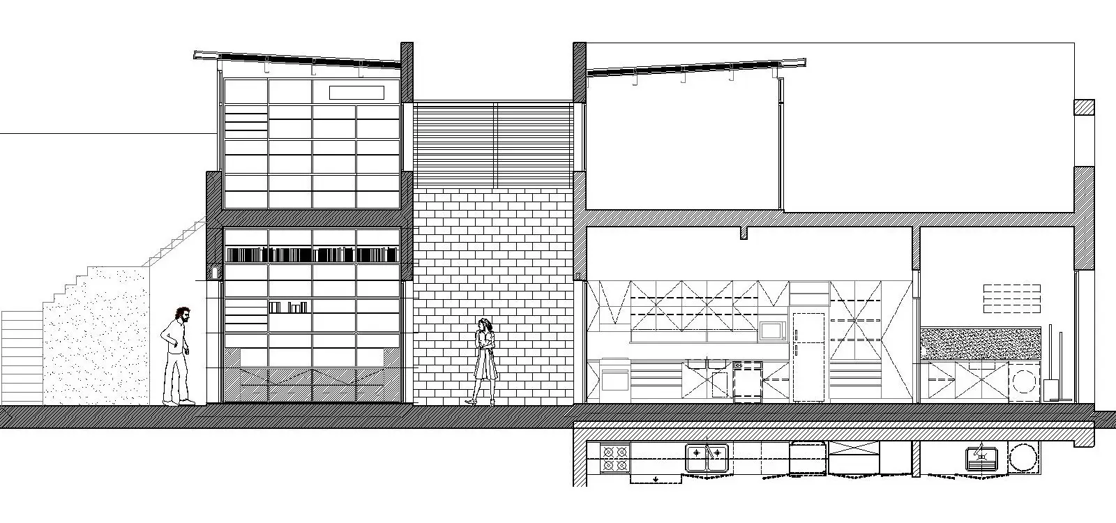
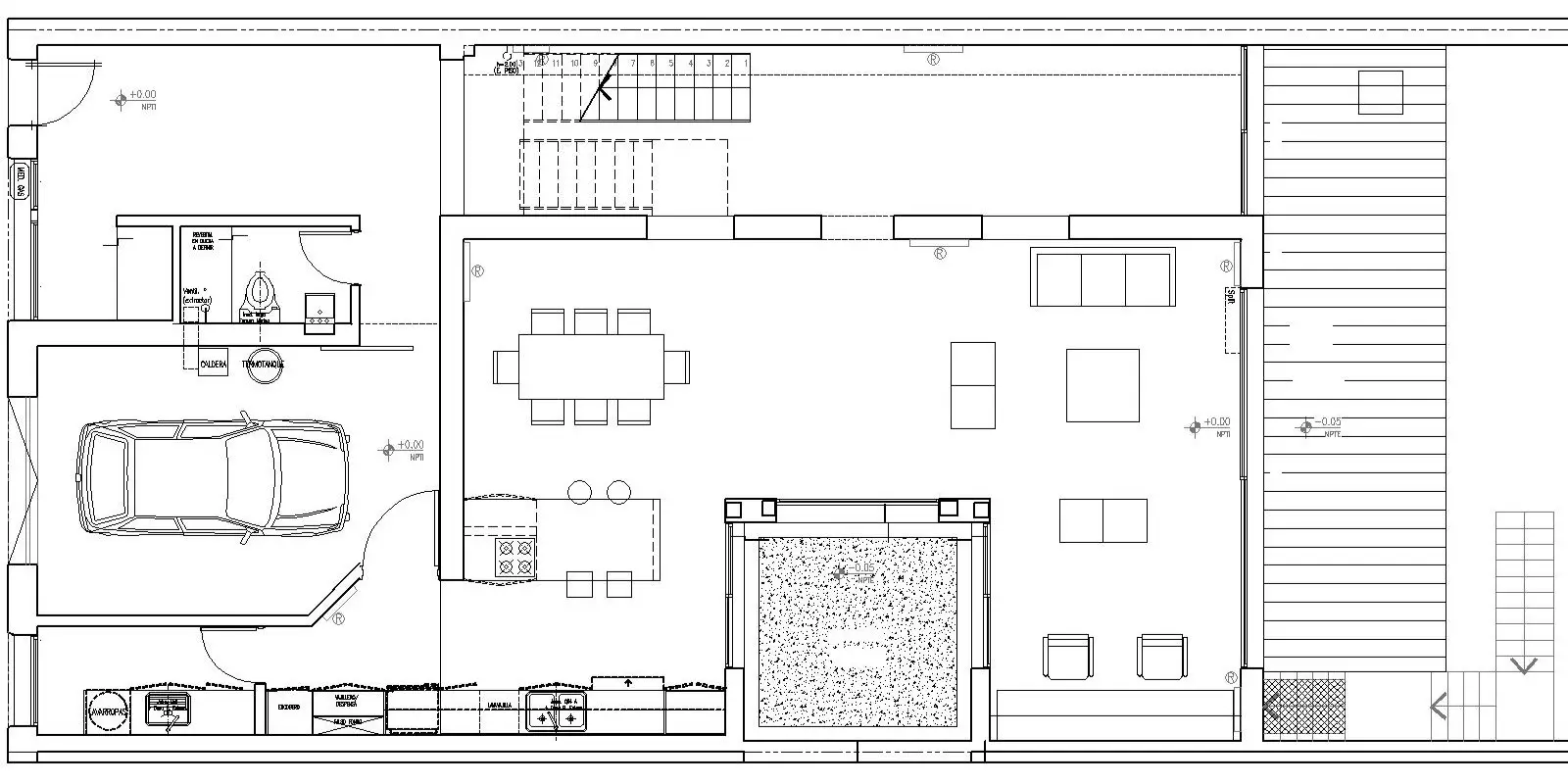
La “finca” Jufré fue el punto de partida para una gran amistad con sus habitantes. El propósito de la reforma consistía en reformular una antigua casa de una planta dentro de un terreno de 10 por 40 metros. Para la ampliación, por un lado, se refuerza la estructura existente, generando aberturas y un patio de mayor tamaño. Por otro lado, un gran techo liviano en doble altura apoyado solamente en las medianeras envuelve la cáscara original, conforma un nuevo piso de habitaciones y cubre el patio lateral dando lugar a la escalera y la circulación principal. Se produce un volumen más compacto, de carácter industrial y que da lugar a un jardín de fondo de grandes dimensiones.
Galería





Créditos







