
ESTUDIOS JUFRÉ Y URIARTE
Villa Crespo, Buenos Aires. 2010-2011. Reforma integral.
430 m²- Proyecto y dirección: Agustín Vital.
- Estructuras: Alberto Mesa, Daniel Mesa.
- Construcción: Oscar Honeker.
- Carpinterías de madera: Daniel Delgado.
- Herrería y vidrios: Juan Carlos Czuplak.
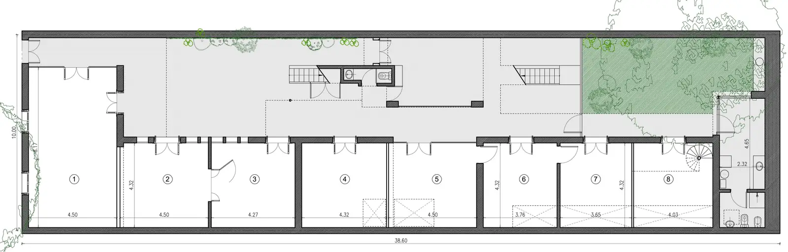
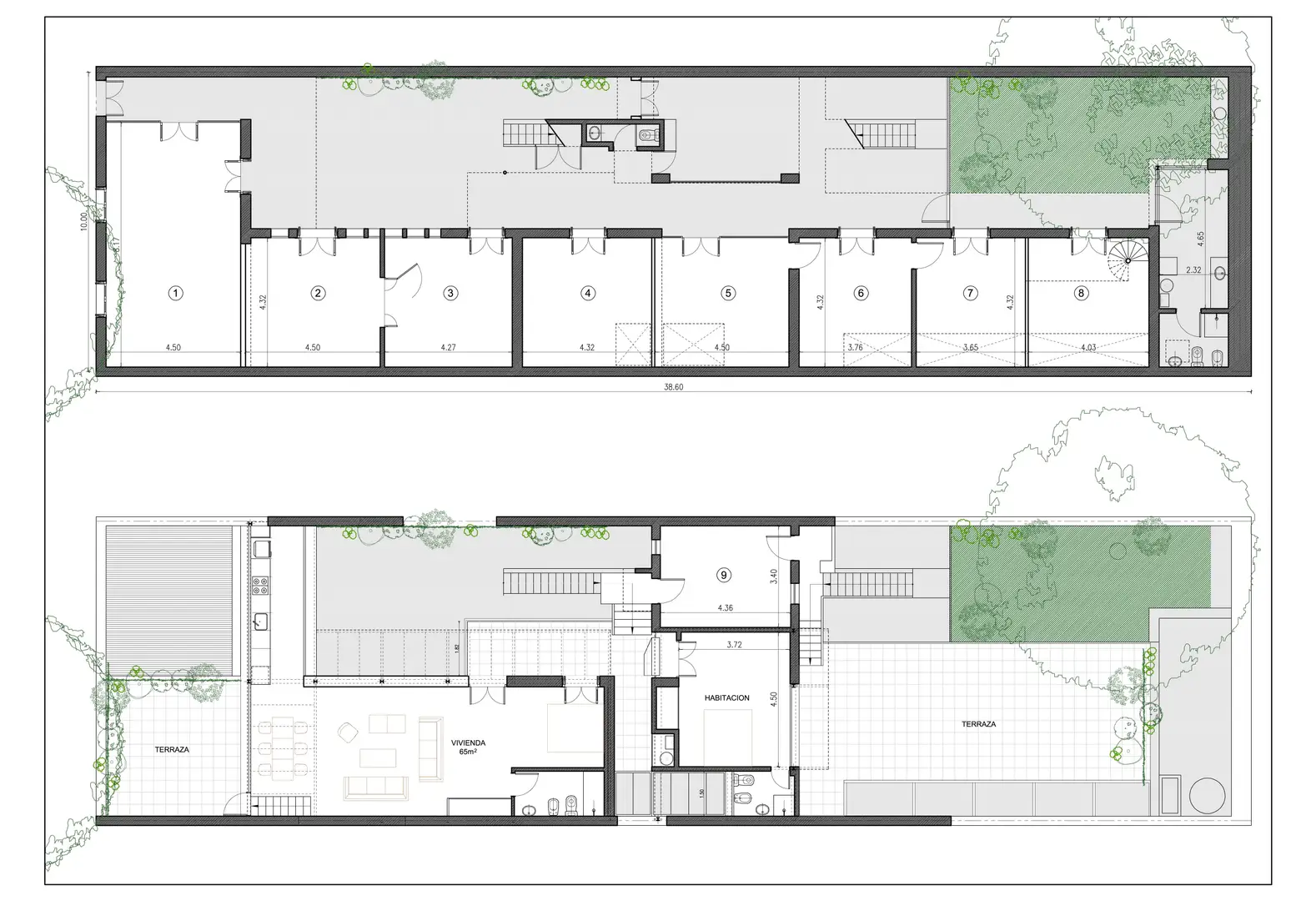
El cartel de venta decía Terreno de 10x40 metros desestimando la presencia de una antigua casa chorizo, y su posible restauración y puesta en valor. Esto fue lo que hicimos cuando la compran los vecinos y amigos de la Casa Jufre, para que no hagan un edificio al lado.
Unificamos en una gran casa las tres unidades que había, comunicando pasillos, patios y terrazas, y conformando 12 estudios profesionales tipo coworking con servicios, sala de reuniones y espacios exteriores en común. Para mejorar las condiciones, se incorporó a cada espacio una fuente de iluminación natural adicional, ya sea por ventanas o claraboyas, según lo permitiera la ampliación sobre el primer piso.
Se restauraron las fachadas, bovedillas, aberturas y postigos de cedro, así como los pisos de pinotea y mosaico. Para la ampliación se siguió la misma línea: se construyeron nuevas bovedillas y muros con ladrillos reciclados de demolición, aberturas de madera de cedro boliviano, pisos nuevos de pinotea recuperada y carpinterías de hierro.
Galería






Créditos





