
PH HONDURAS y GASCÓN
Palermo, Buenos Aires. 2022. Reforma integral.
160 m²- Proyecto y dirección: Agustín Vital.
- Equipo de proyecto: Sebastián Policastro, Mijal Carbajal.
- Albañilería, Sanitarias: Silvino Martínez, Horacio Solís Villalba.
- Carpinterías de madera: Pedro Vanrell, Norberto Martínez.
- Electricidad: Adrián Policastro.
- Herrería y vidrios: Sergio Mendoza, Beatriz Lema.
- Cerramientos de aluminio: Abertec.
- Cielorrasos de yeso: Gabriel Veliz.
- Aire Acondicionado: Matías Saintesteben.
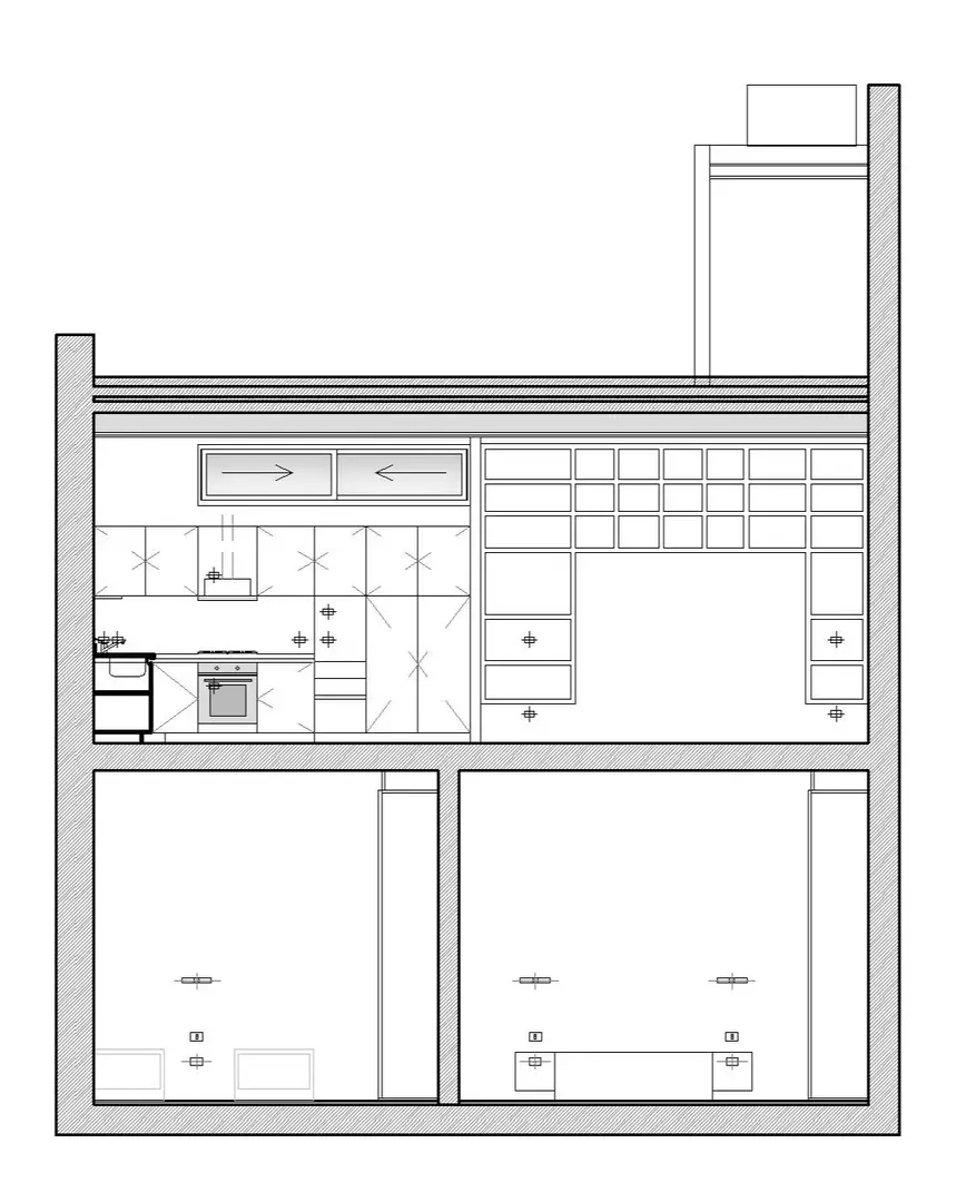
El desafío en nuestra intervención consistía en reformular la pequeña casa que tenían los propietarios de solteros y convertirla en una casa familiar para cinco integrantes, dentro de un particular conjunto de 26 ph de 80 metros cuadrados de terreno y su espacio aéreo.
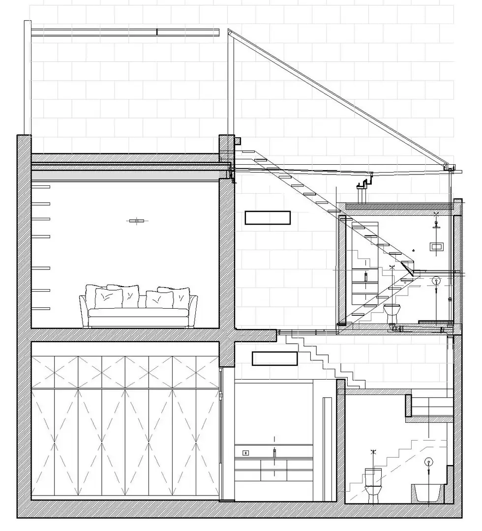
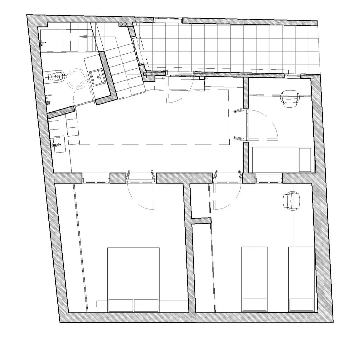
Se aprovechó el desarrollo en vertical, duplicando el patio en planta alta; mediante bandejas de chapa perforada que se pueden pisar y que permiten iluminar y ventilar a los dormitorios de la planta baja. En el primer piso, se cierra este mismo patio con un techo de vidrio corredizo que permite abrir unos dos tercios de su superficie. El living comedor en la planta alta se completa con una terraza accesible, integrada al mismo sistema de patios, circulaciones verticales, servicios y aire y luz.
Las aberturas de madera para la ampliación se consiguieron de demolición, en combinación con las existentes, adaptándolas y restaurándolas.
Galería








Créditos
















