
SEDE CLUB SAN LORENZO
Boedo, Buenos Aires. 2015. Reforma integral.
800 m²- Proyecto y dirección: Agustín Vital.
- Equipo de proyecto: Luciana Pellegrino, Matias Moret, Gustavo Carreira, Juan Pastor Merlo.
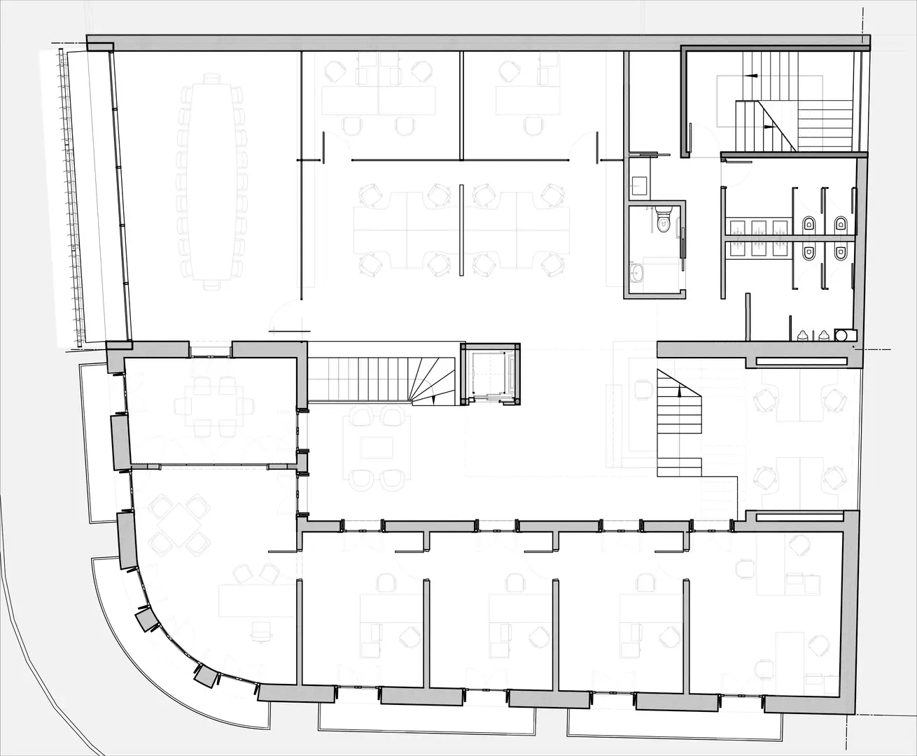
La vuelta a Boedo y la recuperación de los terrenos donde estaba la cancha original de San Lorenzo es un objetivo fundamental en los planes del Club. Como parte de la estrategia y dentro de ese mismo predio, se proyecta la nueva sede administrativa, reutilizando y adaptando la antigua casa en esquina existente al lado de la sede social.
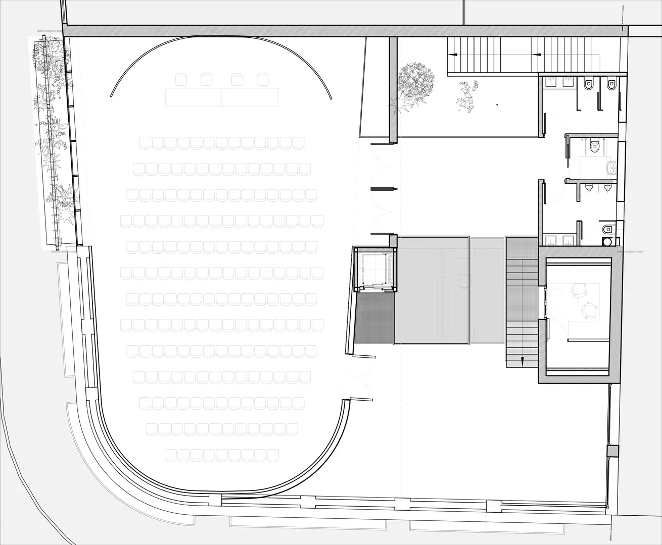
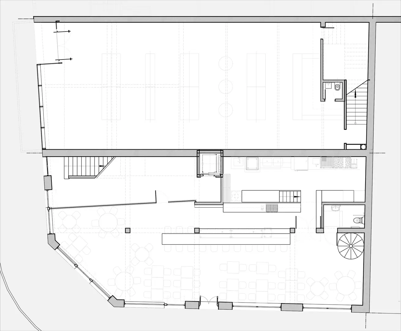
El programa incluye una planta baja comercial, y en primer piso las oficinas y sala de reuniones para la comisión directiva. Se deja previsto un futuro crecimiento en altura para más oficinas y un auditorio.
Galería


Créditos





