
PH LAMBARÉ Y CORRIENTES
Almagro, Buenos Aires. 2021. Reforma integral.
90 m²- Proyecto y dirección: Agustín Vital.
- Equipo de proyecto: Sebastián Policastro, Pablo Gómez Casela, Juan Bustos Berrondo, Mijal Carbajal.
- Albañilería y Sanitarias: Silvino Martínez, Horacio Solís Villalba, Daniel Aquino Cáceres.
- Carpinterías de madera: Norberto Martínez.
- Electricidad: Julio Branda, Pablo Branda.
- Herrería y vidrios: Enrique Ramos, Beatriz Lema.
- Aire acondicionado: Matías Saintesteben.
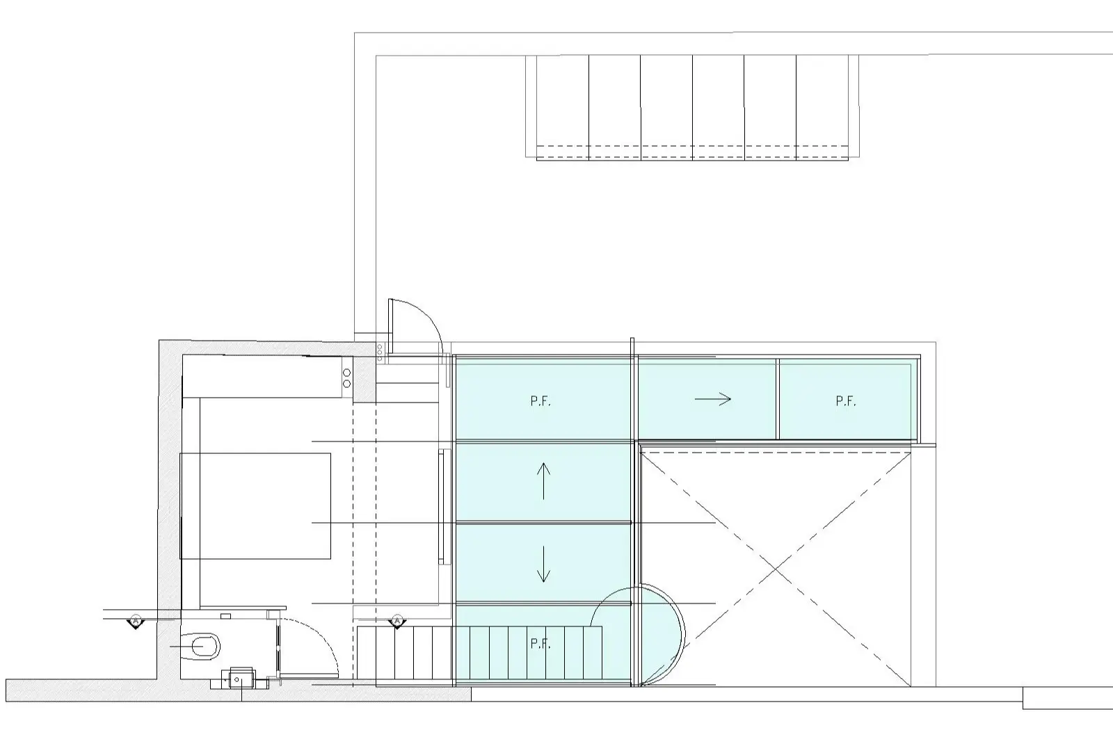
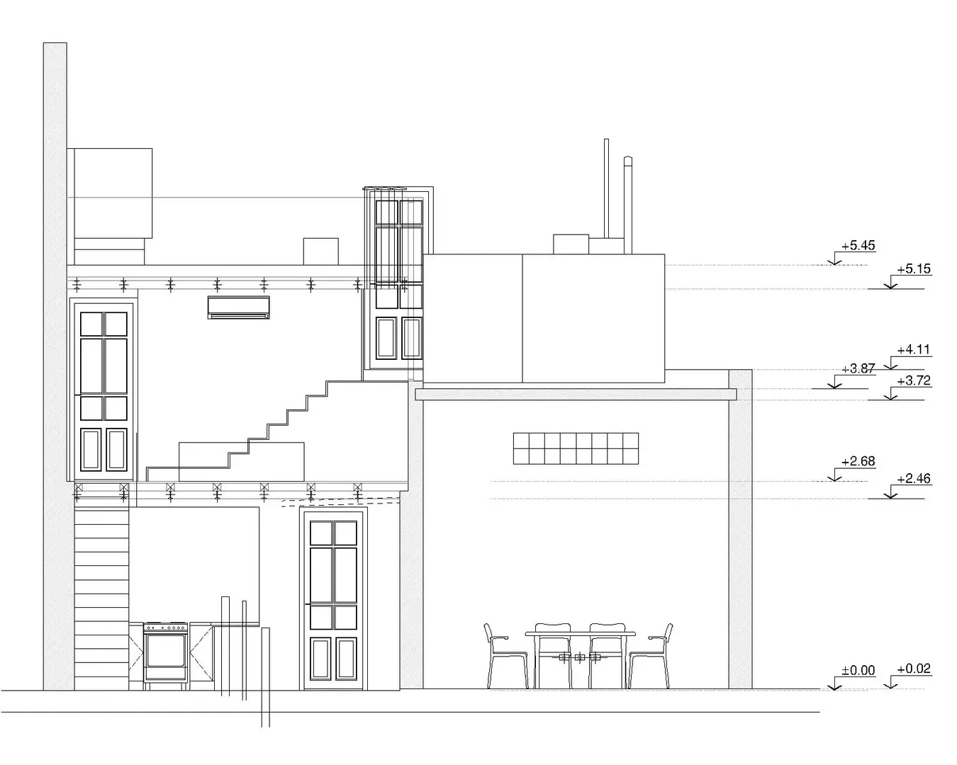
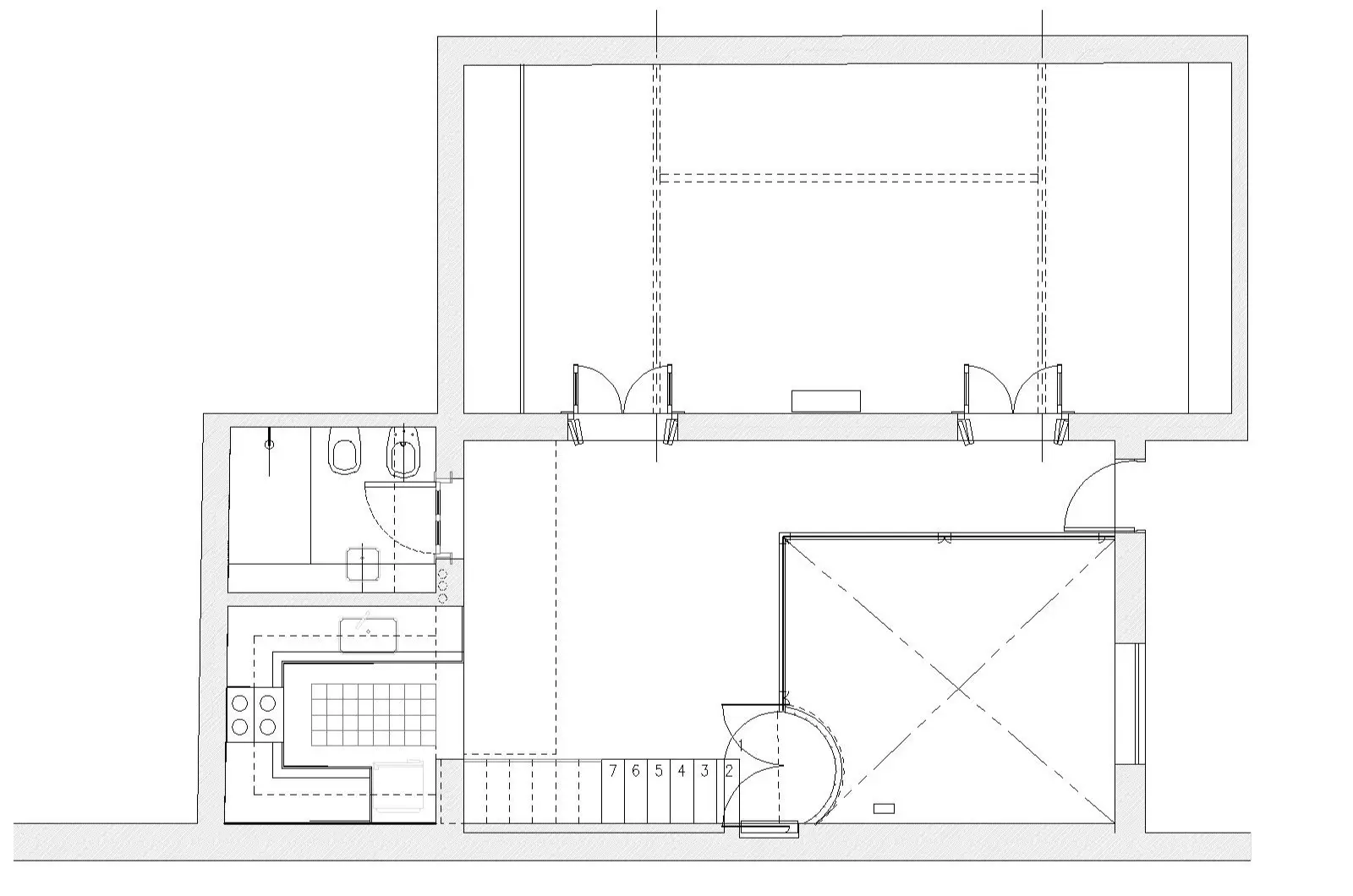
El objetivo principal de la remodelación de este ph tipo casa consiste en aumentar la superficie cubierta en un 50%, ganando el patio como expansión de la cocina y como espacio utilizable todo el año, pero sin perder su capacidad de dar luz y ventilación al resto de la casa. Por otro lado, las dos habitaciones de la planta baja se unifican para tener un living comedor de buenas dimensiones generando una gran abertura central en el techo que permite la entrada de luz cenital y vistas hacia el cielo. Además, con la ampliación del entrepiso se logra sumar un segundo baño y el acceso a la terraza que antes no era posible.
Para el cerramiento del patio se diseña un sistema de paños vidriados corredizos para el techo, y de vidrios pivotantes o proyectantes para los verticales. Se mantienen y acondicionan las aberturas, postigos de madera y pisos de pinotea, así como los pisos de mosaico calcáreo y herrerías.
Galería








Créditos






