
CASA NEWBERY Y FREIRE
Colegiales, Buenos Aires. 2019-2021. Vivienda unifamiliar.
280 m²- Proyecto y dirección: Agustín Vital.
- Equipo de proyecto: Mijal Carbajal, Sebastián Policastro, Juan Bustos Berrondo.
- Hormigón, albañilería y sanitarias: Luján Construcciones.
- Electricidad: Julio Branda, Guillermo Inhouds.
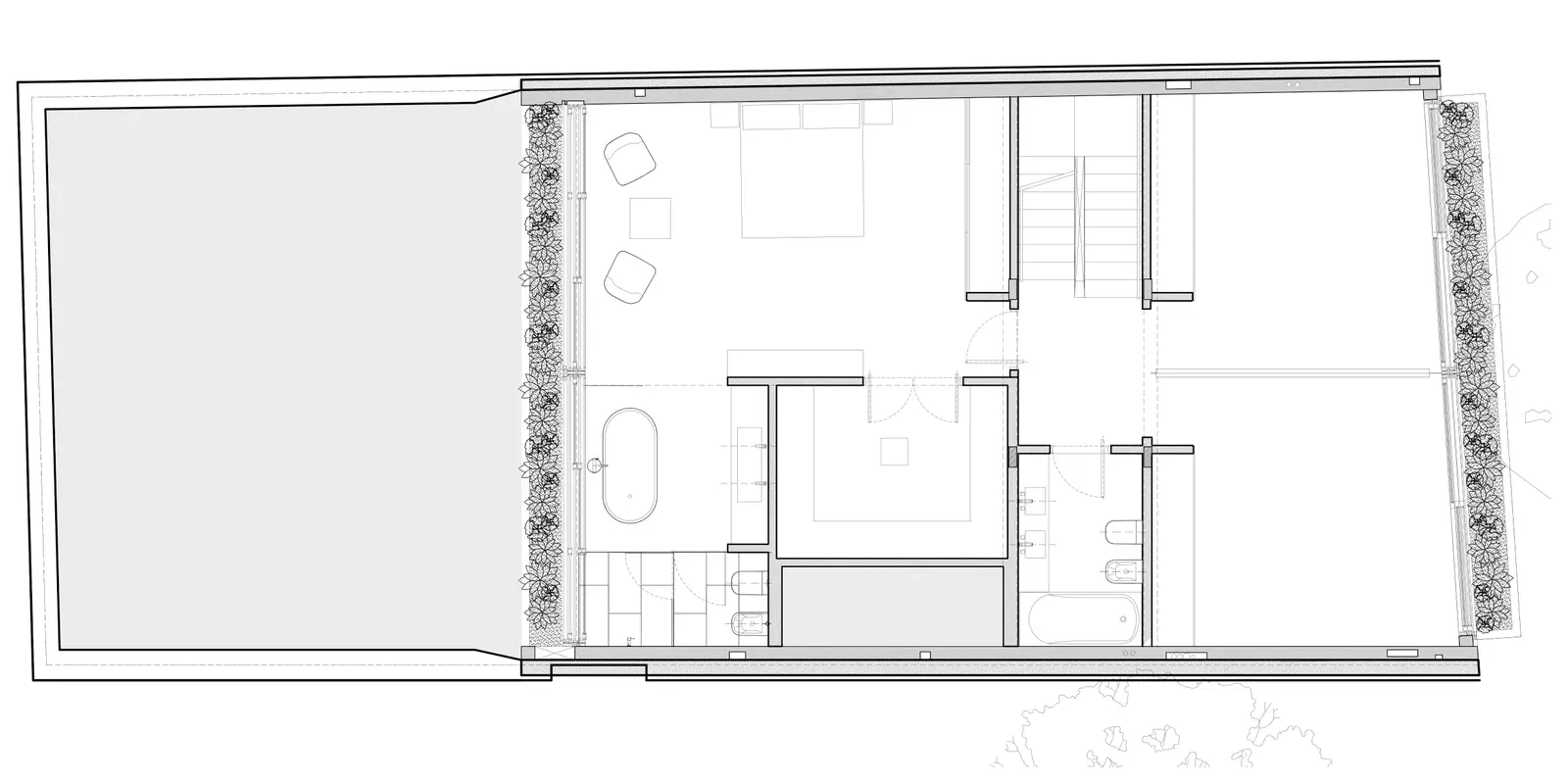
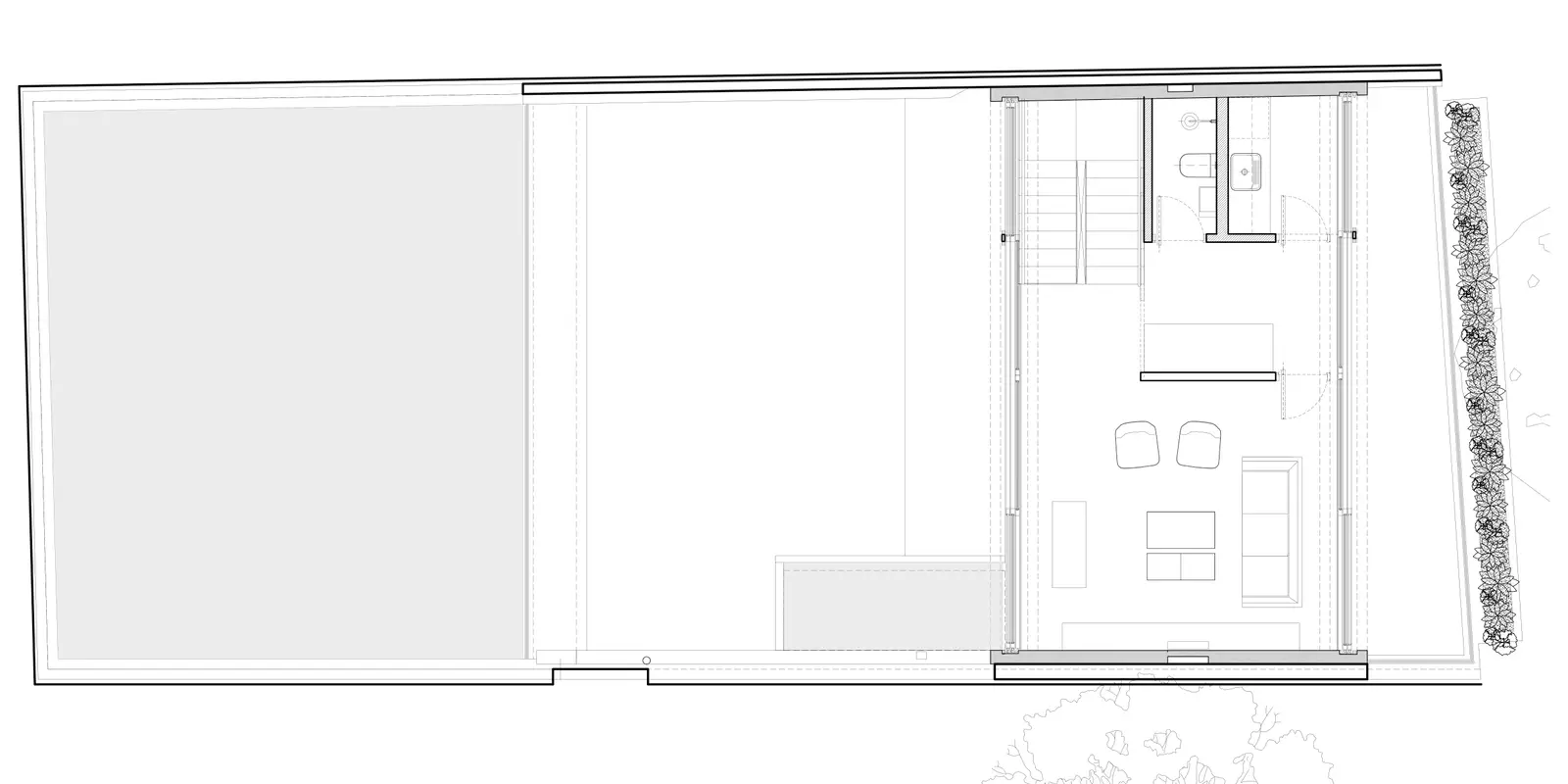
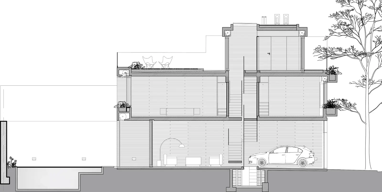
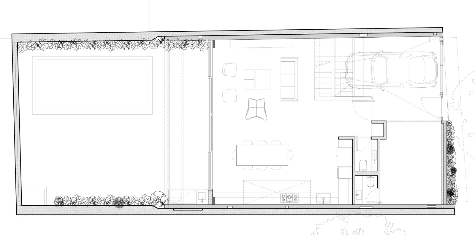
En un barrio central de Buenos Aires de baja altura, se desarrolla esta vivienda familiar en tres plantas. El terreno es acotado pero alcanza justo para tener un fondo o jardín. Se busca la permeabilidad por la continuidad visual y material, logrando una transparencia pasante entre frente y contrafrente. En cada nivel y en ambos sentidos, se agrupan funciones únicas o de mínimas divisiones para todo el ancho del lote.
La planta baja es de 3 metros de altura y se percibe ligera por la losa sin vigas que apoya solamente en las medianeras. En sus extremos está reforzada por los canteros invertidos, y en el centro se sostiene colgada de las vigas del segundo nivel. Estas columnas, que en realidad son tensores, se encuentran ocultas en las particiones de las habitaciones del primer piso. En el último nivel y con la mitad de superficie se ubica un estar-estudio, entre un balcón al frente y la terraza hacia el contrafrente.
La estructura, losa y tabiques fueron realizados en hormigón visto y junto a los pisos de madera, definen los planos de prácticamente toda la casa. Las persianas metálicas microperforadas permiten un filtro a la transparencia con el ancho máximo propuesto.
Galería








Créditos










