
CASA EL OMBÚ
Ezeiza, Provincia de Buenos Aires. 2007-2008. Vivienda unifamiliar.
200 m²- Proyecto y dirección: Agustín Vital.
- Equipo de proyecto: Claudio Costanzo, Daniel Bascoy, Carlos Oneto.
- Construcción: Galemar.
- Estructura metálica: Añuri.
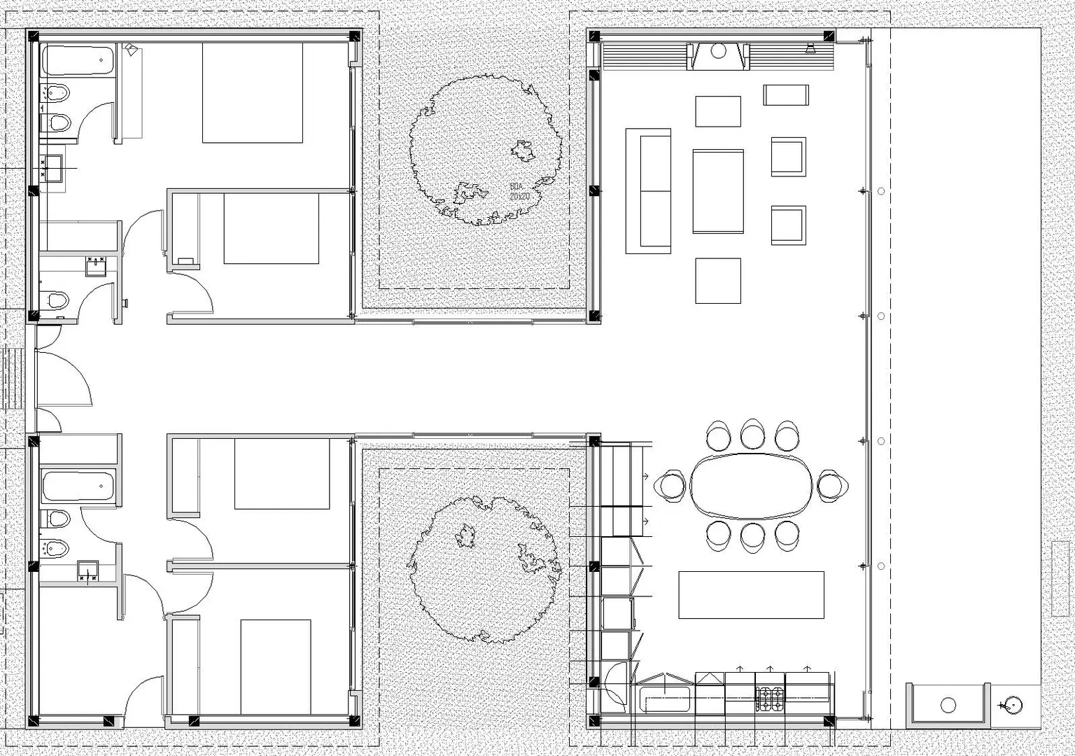
El proyecto comienza con la selección del lote dentro de un barrio privado de 110 hectáreas con una cancha de golf en el centro, priorizando que las vistas sean profundas y despejadas.
Esta casa de fin de semana se concibe al modo de las case study californianas: un techo flotante, liviano y continuo, con una única y suave pendiente que va aumentando su altura a medida que se avanza en el terreno. Las fachadas se cierran o abren al máximo según su orientación y posibilidad de expansión y transparencia. La planta en forma de hache dispone al frente un bloque con los servicios y habitaciones y, separada por dos patios, desplaza al medio del terreno, al área social, protagonista de la vista hacia el parque central del golf.
El volumen apaisado logra integrarse en el paisaje y no resultar agresivo con el entorno. La estructura metálica de la cubierta con sus apoyos esbeltos, se separa de los muros y carpinterías, generando una ventana perimetral continua. Dentro de esta franja se genera continuidad de vistas y cielo, permitiendo a la luz natural entrar y acompañar a sus habitantes, durante el día y las noches de luna.
Galería








Créditos








